VALE.jpg

VALE

TRANSFORMATION D’UN APPARTEMENT À LAUSANNE

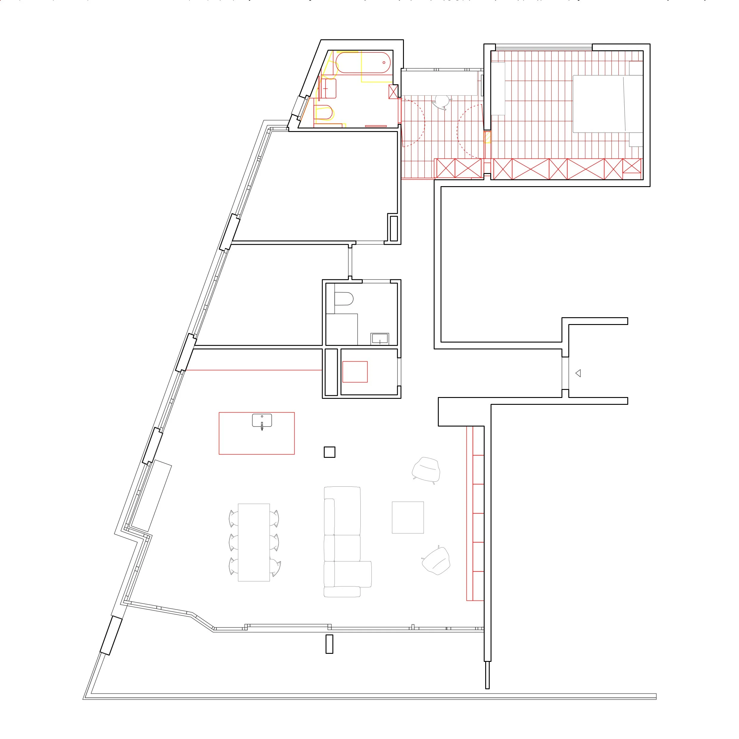
Les travaux sont motivés par l’envie d’une baignoire et le besoin de rangements supplémentaires.

Une palette de matériaux est sélectionnée pour les différentes interventions et apporte douceur, chaleur et unité dans cette appartement de 2004.

Une grande menuiserie sur mesure permet de délimiter une zone parentale composée d’une chambre, d’un dressing, d’un bureau et d’une salle de bain.

La grande étagère au salon habille cette pièce généreuse et permet de dissimuler la télévision derrière des volets coulissants.

 
 
 
 
 
 
 
 
 
 
 
 
 
 
 

ÉQUIPE

Maîtres d’ouvrage
famille PJ

Constructeurs
maçonnerie : MGC maçonnerie et génie civil SA
électricité : R. Monnet & Cie SA
sanitaire : Milliquet SA
chauffage : Hauswirth SA
peinture : Alain Canonica SA
menuiserie : Atelier du Poirier SA
revêtement de sol : Jotterand Sols
terrazzo : Tradibati Sàrl

Photographe : Paola Corsini

 

Plan de situation

 

Plan de l’appartement

 

Coupe de la salle de bain